2025/12/31
\土・日 ・祝オープンハウス開催中/
●長浜市宮司町
12号地平屋モデル
17号地モデル
●近江八幡市北之庄町
6号地モデル≪新価格≫
7号地モデル
●彦根市芹橋一丁目
IoTハウス誕生
3号地モデル
5号地モデル
4号地モデル
●彦根市南川瀬町
2-1号地モデル
2-2号地モデル
滋賀
NEW
予約受付中
オープンハウス開催
予約不要でお気軽にご見学OK!!
思い立ったその時に、ふらっと立ち寄れるのが魅力!
現地スタッフがご案内いたしますので、
いつでもお気軽にお越しください♬
見学が初めての方も、安心してご来場くださいね!
■見学可能時間 10:00~17:00
尚、平日の見学をご希望の方は
モデルハウスページよりご予約ください♬
滋賀県 長浜市宮司町
同分譲地内に2棟公開中!
【分譲地 周辺環境】
長浜市立南郷里小学校まで徒歩19分
長浜市立長浜南中学校まで徒歩9分、日当たり良好閑静な住宅街です。
コープながはま まで徒歩8分
ドラッグユタカ長浜宮司店まで徒歩8分と、商業施設が近く生活に便利な立地です。
滋賀県長浜市宮司町
みやし平屋12号地モデルハウス

外観・・・
ディープグリーンのガルバリウム鋼板に
シャープなリブ形状を施し
力強さを表現したデザイン。
平屋の住みやすさと
ジャパンディの美しさが共存する住まい。
厳選素材と洗練デザインが日常をアートに変える空間。
和と北欧が奏でる新しい暮らしをご体感ください。

内観・・・
リビング中心の回遊動線が
家族の自然な対話を促します。
ウッドデッキへ続く大開口の窓は
内と外の境界を曖昧にし
自然との一体感を実現。
アイランドカウンター付きキッチンは
料理を家族の共同作業に変えます。
「見せる収納」が特徴の主寝室は
モダンさと広がりを兼ね備えた空間。
(モデルハウス平面図)

▼みやし平屋12号地コンセプトモデルハウス▼
滋賀県長浜市宮司町
みやし17号地コンセプトモデルハウス

外観・・・
洗練されたグレーの外壁に
2色のコンクリート調アクセントを配した
モダンで都会的な佇まいの外観。

内観・・・
内部はブルックリンスタイルを彷彿とさせる
家具や植物との調和を楽しむ空間デザインが特徴です。
LDKの吹き抜け窓からは豊かな自然光が差し込み
リビングからウッドデッキへと続く開放的なテラス窓が
屋内外の境界を曖昧にし解放感あふれる空間を創出しています。
インテリアはブラックアイアンの無骨さと
チェリー材の温かみが絶妙なバランスを生み出します。
コンクリート打ちっぱなしの壁面がインダストリアルな雰囲気を
ヴィンテージ感のある素材や柄が空間に深みを与えます。
(モデルハウス平面図)

▼みやし17号地コンセプトモデルハウス▼
滋賀県 近江八幡市北之庄町
同分譲地内に2棟公開中!
【分譲地 周辺環境】
近江八幡市立八幡小学校まで徒歩22分
近江八幡市立八幡中学校まで徒歩10分
ラ コリーナ近江八幡まで徒歩4分。
八幡堀にも近く歴史と文化、自然の魅力に満ちた街並みです。
滋賀県近江八幡市
北之庄6号地コンセプトモデルハウス

外観・・・
シャープな片流れ屋根が印象的なモノトーンの洗練された外観。
くっきりとした横目地が印象的な大割柄のモダンな表情の外壁に
アクセントのトレンド感溢れる石目調を合わせ
スタイリッシュな佇まいに仕上げました。

内観・・・
床材には柔らかなアッシュホワイトを採用し
ブラックの建具が織りなすコントラストがシャープな空間を演出。
グレートーンの家具とシンプルな石目調の壁面が
モダンな印象を際立たせています。
洗練を纏いながらも温もりのある空間は
これからの大切な時間を彩る
心地よい住まいとなることでしょう。
(モデルハウス平面図)

▼北之庄6号地コンセプトモデルハウス▼
滋賀県近江八幡市
北之庄7号地コンセプトモデルハウス

外観・・・
モダンなブラックを基調とした外観は
コンクリート調のパラペットと片流れ屋根が織りなす
スタイリッシュな佇まい。

内観・・・
グレイッシュインテリアにブラックの洗練を効かせ
大理石調の水廻りが醸し出す
ラグジュアリーな空間の広がり。
吹き抜けの開放感を際立たせる
ロータイプの家具と計算された照明計画。
シンプルさを極めた室内は
あなたの感性が自由に表現できる
無限のキャンバスとなります。
(モデルハウス平面図)

▼北之庄7号地コンセプトモデルハウス▼
芹橋一丁目分譲地内
みんなの家初のIoTハウスが誕生!
【分譲地 周辺環境】
彦根市立城東小学校まで徒歩9分
彦根市立東中学校まで徒歩16分、日当たり良好閑静な住宅街です。
平和堂彦根銀座店まで徒歩2分
セブンイレブン彦根銀座店まで徒歩3分と、生活に便利な立地です。
滋賀県彦根市
芹橋5号地平屋モデルハウス

外観・・・
落ち着いたブラックの外観に木の温もりが調和した
平屋の佇まいが、帰る度に心を穏やかにします。
北欧の洗練されたシンプルさと
ヴィンテージの深い味わいが出会った空間で
家族の時間がゆっくりと流れていきます。

内観・・・
玄関を入ると、木の香りに包まれて
一日の疲れがそっと解けていく。
3LDKの開放的な間取りは、家族それぞれの
心地よい居場所を作り出します。
キッチンのおしゃれな下がり天井が
料理の時間を特別なひとときに変え、
リビングの塗り壁は、時を重ねるごとに
家族の思い出と共に美しく変化します。
ウォークインクローゼット、ファミリークローゼット、
シューズクローゼットが完備された収納力で
美しい暮らしを無理なく続けられます。
(モデルハウス平面図)

▼芹橋平屋コンセプトモデルハウス▼
滋賀県彦根市
芹橋3号地コンセプトモデルハウス

外観・・・
素材感のある塗り壁と
深い陰影のボーダーデザインで
上質でモダンな外観。

内観・・・
グレージュの床にウォールナットの建具
親しみやすいスタイリッシュな空間
広い玄関にはロータイプのシューズボックス
エコカラットタイルを照明で照らし
ギャラリーのような仕上がり
四方を外壁に囲まれた”ロジア”は
風通しと日当たりを確保しつつ
視線を気にすることなく
アウトドアやプライベートな時間を楽しめます
(モデルハウス平面図)

▼芹橋3号地コンセプトモデルハウス▼
滋賀県彦根市芹橋
芹橋4号地モデルハウス

外観・・・
切妻屋根に立体感のある
スリットデザインが効いたモダンな外観。
グレージュの中にさりげなく取り入れた木目が
自然な温もりを添え
洗練された佇まいを演出します。
バランスよく配置した黒のサッシで
全体を引き締め、美しいファサードが完成。

内観・・・
内装は、外観ともリンクする
彩度を抑えたコーディネートに。
1階にはマットな質感が特徴の
オークの突き板フローリングを採用し
グレージュのグラデーション感を味わえる
上品なナチュラルスタイルを目指しました。
自然素材が織りなす心地良さと
洗練されたデザインが共存する
上質な住まいをぜひご体感ください。
(モデルハウス平面図)

▼芹橋4号地コンセプトモデルハウス▼
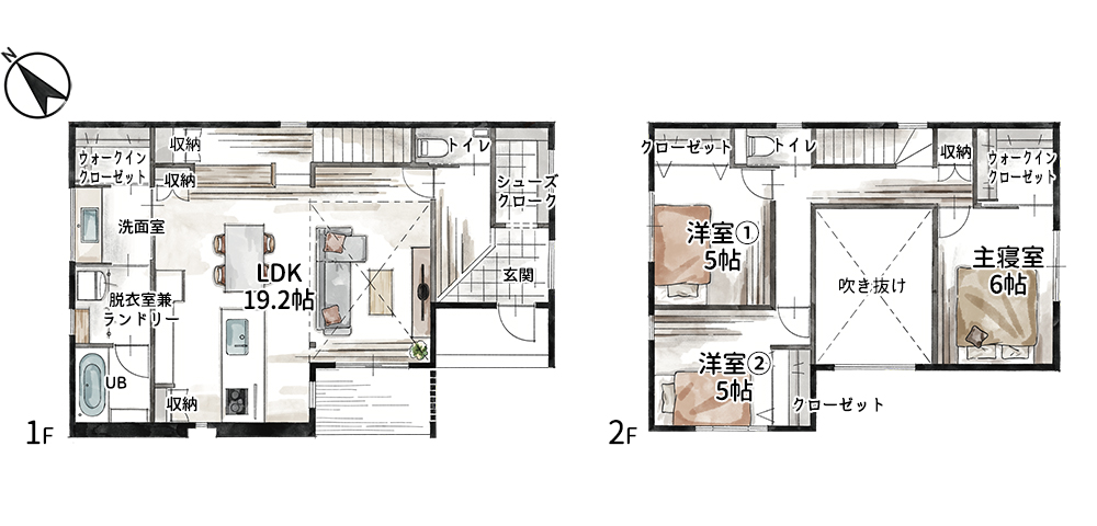
滋賀県彦根市南川瀬町
南川瀬町 2-1号地モデルハウス

外観・・・
グレーとホワイトが織りなす
シャープな片流れ屋根のフォルム。
ブラックのサッシが
都会的な表情を際立たせる。
内観・・・
深みのあるグレーを基調とした室内は
チェリーの床が温もりと彩りを添える
大人のためのモダンな住まい。
アイランドキッチンが生み出す
開放感と上質な空間。
壁一面の本棚を備えたSOHOスペースが
暮らしに新しい可能性を与える。
家族の気配を感じながら
仕事も、宿題も、読書も。
(モデルハウス平面図)

▼南川瀬2-1号地コンセプトモデルハウス▼
滋賀県彦根市南川瀬町
南川瀬2-2号地モデルハウス

外観・・・
落ち着いたグレーの石目外壁が
カリフォルニアの青空に映える
洗練されたセレニティスタイル。
爽やかなホワイトベースの室内に
突板の豊かな木目と無垢建具が
自然の温もりを添えています。

内観・・・
ブルーグリーンのリビングドアが
海風のような爽やかなアクセントとして
空間に彩りをもたらします。
通常より高い天井には
シーリングファンがゆったりと回り
開放感あふれるリビング空間を演出。
タイル柄や木目のアクセントクロスが
遊び心と個性を表現し
西海岸カフェのような心地よさを実現。
シューズクローゼットから続く
スムーズな回遊動線と充実した収納計画で
日々の暮らしを豊かにサポート。
カリフォルニアの風を感じながら
リラックスした暮らしをご提案します。
(モデルハウス平面図)

▼南川瀬2-2号地コンセプトモデルハウス▼
★同分譲地に続々登場予定★
2-10号地モデル・1-16号地モデルが計画中
coming soon...
みんなのアパート
土地と建物がセットになった
スマートプランをご提案!
「みんなの土地」が厳選した利便性の良い土地と
収益性の高い建物プランを計画し
パッケージプランにてご提案させていただきます。
土地探しの手間をかけることなく
アパート経営計画をスタートさせることができます。
すでに立地条件や収益性を専門家が精査済!
安心して投資判断していただけます。
【家づくり相談・お問い合わせ】
TEL:0120-37-1837
または家づくり相談予約フォームへ
【インスタグラム】
各モデルハウスの様子を
動画で紹介中!!
みんなの家インスタグラムはこちら
【モデルハウス購入をお考えの方】
TEL:0120-37-1739(みんなの土地)
またはみんなの土地販売専用ページへ










































